| 微信 : Adelaidehelp 联系邮箱 : [email protected] 开启辅助访问
  • 已租【Harcourts美家】葡萄园中的宁静庄园 Golden Grove ...

    浏览人气 : 1569
    5 Para Valley Road, Golden Grove, SA 5125 Property Number : 1590088 价格 : 已租 3 2 10

    Kyle

    联系方式 :
    0426020421

    看房时间

    看房时间1 :

    看房时间2 :

    地理位置
    打印 上一主题 下一主题

    已租【Harcourts美家】葡萄园中的宁静庄园 Golden Grove整租

    [复制链接]

    本内容为网友发布信息,仅代表原作者观点,不代表本平台立场。

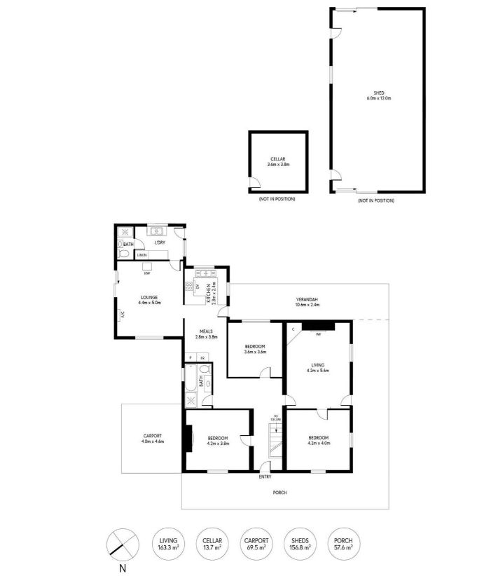
    坐落在连绵起伏的山丘与葡萄园之间,这座迷人的三卧两卫住宅,将宁静、空间与便利完美融合——在距离阿德莱德北区仅短途车程的地方,享受纯粹的乡村生活之美。
    远离喧嚣,环绕于如画的自然景观之中,这座住宅为您带来真正独特的生活方式——每天清晨聆听鸟鸣,傍晚欣赏夕阳洒落在葡萄藤上的金色光辉,同时轻松前往购物中心、学校与主要生活设施。

    距离 The Stables Shopping CentreGolden Grove High SchoolCobbler Creek Recreation ParkTea Tree Plaza 仅数分钟车程,让您在享受乡村宁静的同时,依然保有城市生活的便利。

    房屋特色:
    • 三间宽敞明亮的卧室
    • 两间设计良好的浴室
    • 独立正式客厅与用餐区
    • 功能型厨房,储物空间充足
    • 独立洗衣房,方便实用
    • 被葡萄园与绿意环绕的宽阔户外空间
    • 大型储物间/工作间,可作仓库或兴趣空间
    • 可容纳约 8–10 辆车的超大停车区
    • 环境幽静,景色优美,远眺山谷风光


    租赁信息:
    • 押金: 相当于 6 周租金
    • 租期: 6 个月,可协商延长
    • 不带家具


    这是一处真正独特的居所——在自然环抱中感受宁静与辽阔,却依然便利通达。若您向往远离尘嚣、亲近自然的生活方式,这将是一个难得的机会。







    BBS提醒: 请避免提前支付订金、押金等任何费用,请与对方当面沟通,确认资质并看清条款。谨防上当受骗。

    免责声明: 本网站所提供的信息,只供参考之用。本网站不保证信息的准确性、有效性、及时性和完整性。本网站及其雇员一概毋须以任何方式就任何信息传递或传送的失误、不准确或错误,对用户或任何其他人士负任何直接或间接责任。在法律允许的范围内,本网站在此声明,不承担用户或任何人士就使用或未能使用本网站所提供的信息或任何链接所引致的任何直接、间接、附带、从属、特殊、惩罚性或惩戒性的损害赔偿。

    收藏收藏 顶 踩
    回复

    使用道具 举报

    您需要登录后才可以回帖 登录 | 注册

    本版积分规则

    其他网友还看了 ...

    Copyright @ 2022 AdelaideBBS.com. All rights reserved. User Agreement

    客服号

    公众号