| 微信 : Adelaidehelp 联系邮箱 : [email protected] 开启辅助访问
  • Please delete

    查看数: 685 | 评论数: 6 | 收藏 0
    关灯 | 提示:支持键盘翻页<-左 右->
      组图打开中,请稍候......
    发布时间: 2-6-2015 16:00

    正文摘要:

    本帖最后由 Jess1234567 于 10-8-2015 04:48 PM 编辑

    回复

    Jess1234567 发表于 15-7-2015 14:02:12
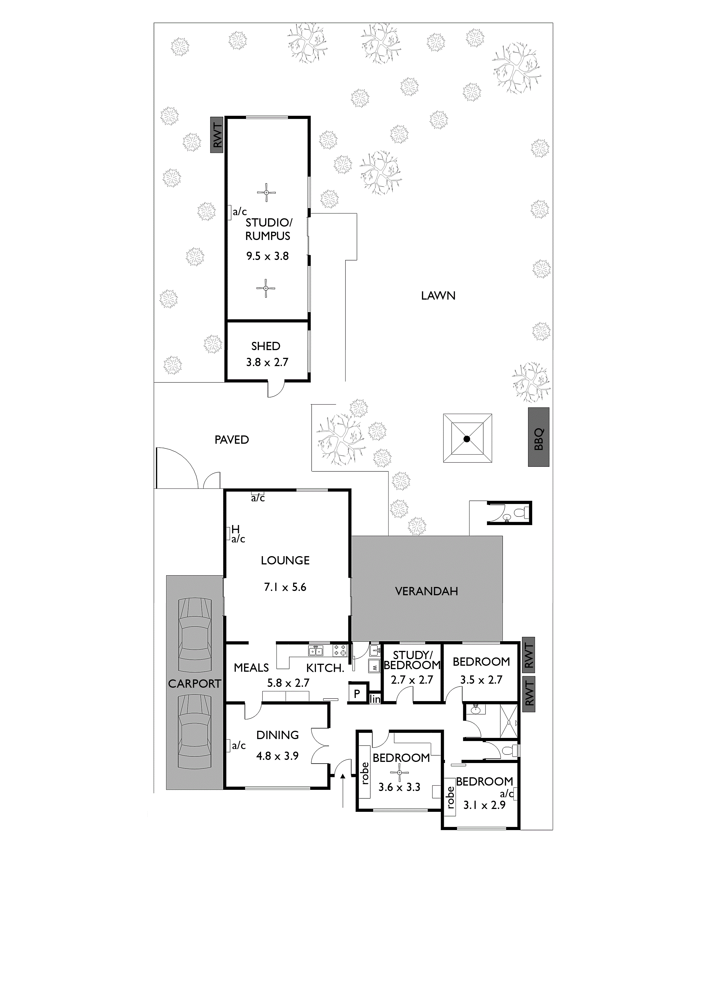
    南边6房2卫2车位大House
    Property Address: 54 Nungah Avenue, Park Holme, SA 5043
    Rent : $600 Per week (可分租可整租)
    6 间good-sized Bedrooms, 2 卫生间, 无家具(furnitures for display only) 开放式厨房 Gas cook-top , 房子自身是带太阳能板的节能环保,房子附近就有Coles , 近Marion Shopping centre.


    感兴趣的童鞋请联系 Rosalind at 0435 054 892.
    Jess1234567 发表于 17-6-2015 09:25:48

    Copyright @ 2022 AdelaideBBS.com. All rights reserved. User Agreement

    客服号

    公众号