| 微信 : Adelaidehelp 联系邮箱 : [email protected] 开启辅助访问
  • 【Harcourts美家地产】位于Hazelwood Park中心地带老钱 ...

    浏览人气 : 2883
    10 Hazelwood Avenue, Hazelwood Park, SA 5066 Property Number : 1525874 价格 : 1400/周 4 4 6

    William Bai

    联系方式 :
    0402427738

    看房时间

    看房时间1 :

    看房时间2 :

    地理位置
    打印 上一主题 下一主题

    【Harcourts美家地产】位于Hazelwood Park中心地带老钱风豪宅整租

    [复制链接]

    本内容为网友发布信息,仅代表原作者观点,不代表本平台立场。

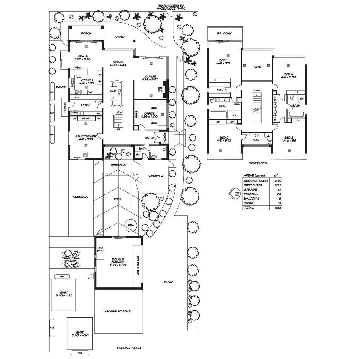
    位于阿德莱德东区Hazelwood Park中心,这套住宅提供无与伦比的隐私和直接的公园通道。这座建筑风格的行政住宅拥有大幅窗户,捕捉Hazelwood Park的迷人景色。住宅位于长车道的尽头,双砖设计最大限度地利用了公园旁的地理位置。特色包括带顶棚的游泳池馆、影院房和宽敞的户外娱乐区。

    [color=rgba(0, 0, 0, 0.9)]

      • 四间宽敞的楼上卧室
      • 主卧和第二卧室配有独立卫浴
      • 另外两间卧室共用一个双向浴室
      • 美食厨房配有现代电器
      • 客厅配有燃气壁炉
      • 大型书房配有内置书桌和书架
      • 家庭影院房配有iPad控制的视听设备
      • 中央中庭的可伸缩吊灯
      • 高质量镶木地板
      • 全屋布线的内置音响系统
      • 大量内置储物空间
      • 顶楼洗衣槽
      • 强大的逆循环、管道和分区空调系统
      • 度假村风格的加热游泳池(太阳能和电力)
      • 宽敞的户外娱乐区
      • 5千瓦太阳能板
      • 约12,000升的雨水储存
      • 自动花园浇灌系统
      • 双自动车库和双车棚
      • 额外的路外停车位,可停两辆车
      • 靠近顶级学校、市区、Burnside Village以及The Parade的咖啡馆和商店


    租赁详情
    * 押金- 6 周租金等值
    * 租赁期限 - 12 个月优先
    * 无家具

    有意请联系William (加微信备注地址)








    BBS提醒: 请避免提前支付订金、押金等任何费用,请与对方当面沟通,确认资质并看清条款。谨防上当受骗。

    免责声明: 本网站所提供的信息,只供参考之用。本网站不保证信息的准确性、有效性、及时性和完整性。本网站及其雇员一概毋须以任何方式就任何信息传递或传送的失误、不准确或错误,对用户或任何其他人士负任何直接或间接责任。在法律允许的范围内,本网站在此声明,不承担用户或任何人士就使用或未能使用本网站所提供的信息或任何链接所引致的任何直接、间接、附带、从属、特殊、惩罚性或惩戒性的损害赔偿。

    收藏收藏 顶 踩
    回复

    使用道具 举报

    您需要登录后才可以回帖 登录 | 注册

    本版积分规则

    其他网友还看了 ...

    Copyright @ 2022 AdelaideBBS.com. All rights reserved. User Agreement

    客服号

    公众号