| 微信 : Adelaidehelp 联系邮箱 : [email protected] 开启辅助访问
  • 已租【Harcourts美家】东区Kensington Gardens 3室2卫别 ...

    浏览人气 : 2609
    7A West Terrace, Kensington Gardens, SA 5068 Property Number : 1556900 价格 : 已租 3 2 2

    William Bai

    联系方式 :
    ‭0402 427 738‬

    看房时间

    看房时间1 :

    看房时间2 :

    地理位置
    打印 上一主题 下一主题

    已租【Harcourts美家】东区Kensington Gardens 3室2卫别墅整租

    [复制链接]

    本内容为网友发布信息,仅代表原作者观点,不代表本平台立场。

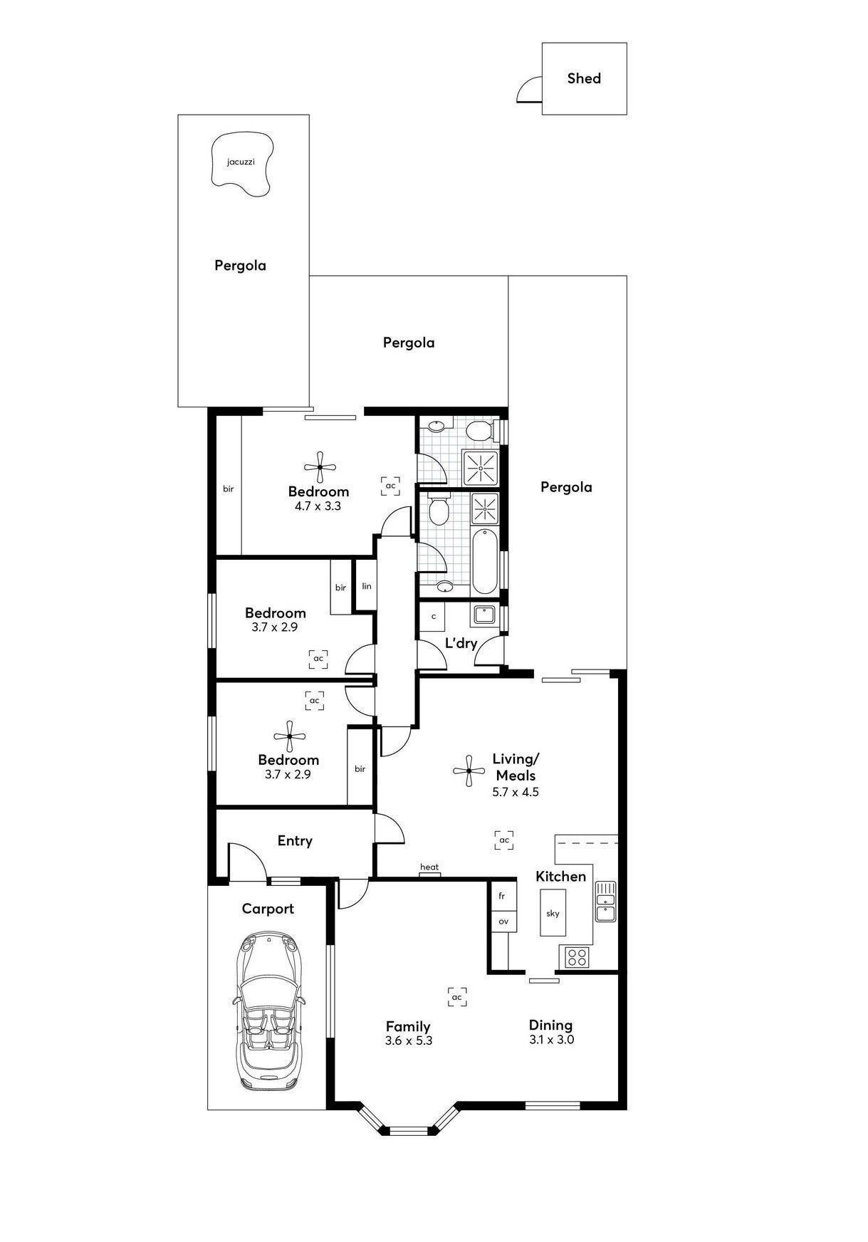
    这套维护良好的温馨住宅位于 Kensington Gardens 核心区域,占地 609 平方米,周围绿意环绕,提供宽敞且灵活的居住空间。无论是家庭居住还是专业人士,这里都能满足您的需求。

    房屋亮点:
    • 宽敞明亮的起居空间,包括正式客厅和开放式家庭休闲区
    • 现代化厨房,配备 Smeg 电器和优质木质橱柜
    • 三间宽敞卧室,均带内置衣柜,主卧配备独立卫浴
    • 主浴室设计时尚,全瓷砖铺设,配备浴缸及无框淋浴间
    • 户外娱乐区设有遮阳凉亭,并配嵌入式按摩浴池,适合全年使用
    • 精美园艺景观,环境宁静宜人,享受自然氛围
    • 生活便利,临近 Kensington Oval、公园、当地咖啡馆、Norwood Parade 及顶级学校
    • 距离阿德莱德 CBD 仅 10 分钟车程,通勤便利

    租赁信息:
    • 押金:4周房租
    • 租期:优先考虑 12 个月长期租客
    • 租客需支付水费(使用量 & 供应费用)
    • 申请方式:请通过 realestate.com.au APPLY 按钮提交在线申请

    如需更多详情或预约看房,请联系William Bai

    BBS提醒: 请避免提前支付订金、押金等任何费用,请与对方当面沟通,确认资质并看清条款。谨防上当受骗。

    免责声明: 本网站所提供的信息,只供参考之用。本网站不保证信息的准确性、有效性、及时性和完整性。本网站及其雇员一概毋须以任何方式就任何信息传递或传送的失误、不准确或错误,对用户或任何其他人士负任何直接或间接责任。在法律允许的范围内,本网站在此声明,不承担用户或任何人士就使用或未能使用本网站所提供的信息或任何链接所引致的任何直接、间接、附带、从属、特殊、惩罚性或惩戒性的损害赔偿。

    收藏收藏 顶 踩
    回复

    使用道具 举报

    您需要登录后才可以回帖 登录 | 注册

    本版积分规则

    其他网友还看了 ...

    Copyright @ 2022 AdelaideBBS.com. All rights reserved. User Agreement

    客服号

    公众号