| 微信 : Adelaidehelp 联系邮箱 : [email protected] 开启辅助访问
  • 【Harcourts美家|出售】全新落成|Mitcham稀缺级奢华单 ...

    浏览人气 : 1330
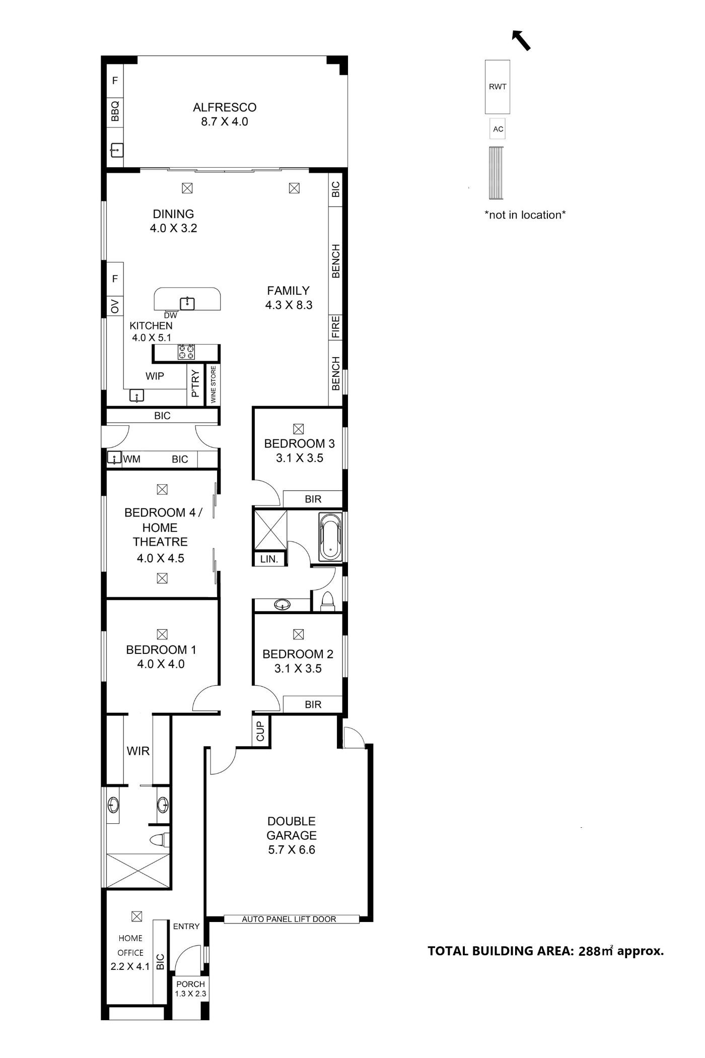
    42 Birdwood Street, Mitcham, SA 5062 Property Number : 1597460 价格 : 请于08/12/2025前向中介报价 4 2 4

    William Bai & Chuan Qu

    联系方式 :
    0402 427 738 OR 0451 900 109

    看房时间

    看房时间1 :

    看房时间2 :

    地理位置

    【Harcourts美家|出售】全新落成|Mitcham稀缺级奢华单层独立住宅

    [复制链接]

    本内容为网友发布信息,仅代表原作者观点,不代表本平台立场。

    坐落于米切姆备受推崇的林荫街道,这是一套真正意义上的旗舰级定制住宅。作为建商自住标准打造,每一处细节都彰显精工品质与长期居住的舒适考量。

    奢华格局 · 匠心工艺
    约288㎡奢阔居住空间,全屋3米挑高天花,气场十足
    人字纹工程木地板,经典、大气、极致耐用
    商用级双层玻璃铝框窗户,卓越隔热与静音表现
    R1.3隔热毯 + SoundShield隔音系统,四季舒适、私密静谧
    全屋LED照明与耐用易打理材料,适合现代家庭长期居住
    顶配厨电 · 尊享娱乐空间
    全套 Miele 奢华家电:蒸烤一体机、咖啡机、烤箱/空气炸组合、炉灶、吸油烟机、洗碗机
    40mm厚石材中岛台 + 步入式储物间(WIP)
    冰箱预留直饮水管线、红酒储存柜、水吧悉数配置
    室内外无缝衔接至 全覆盖户外娱乐区(Alfresco):
    内置橱柜
    内置煤气烤炉(gas BBQ)
    酒吧冰箱
    四季皆宜的社交空间
    采光充足的开放式客餐厅,搭配 燃气壁炉,奢雅温暖兼具

    奢适卧室 · 酒店级卫浴
    主卧配备 定制步入式衣帽间(WIR)
    奢华套间浴室采用高端饰面 + 隐藏式水箱马桶
    其他卧室均带入墙式衣柜(BIR)
    主浴室配置 实心工程石材独立浴缸 + 隐藏式水箱马桶
    第二浴室同样设有隐藏式水箱马桶及独立封闭式WC,极致私密与便利
    智能科技 · 节能环保 · 全面安心
    三星智能指纹锁(指纹、卡片、机械钥匙 + 低电警示)
    全屋电动窗帘(App 控制)
    大金(Daikin)全屋中央空调 + 智能温控
    10kW太阳能 + 20kW电池储能系统
    预留电动车充电(EV charging)线路
    AI智能安防系统(可追踪人体活动)
    电力与天然气结合:天然气热水、燃气壁炉及户外BBQ
    优越区位 · 低维护生活方式
    坐落 尊贵林荫大道
    景观式低维护花园 + 自动灌溉

    minutes 直达名校:Scotch College、Mercedes College、Mitcham Primary
    靠近公园、公共交通、Mitcham Shopping Centre 及周边精品生活区
    适合追求品质生活的家庭、专业人士及退休人士

    额外亮点
    全屋隐藏式水箱马桶
    实心工程石材浴缸
    车库地面商业级环氧涂层(浅蓝色)
    充足收纳空间
    高度智能规划,长期居住成本低、维护简便

    有意请联系William or Chuan
    ezgif-2-a402708a16.jpg ezgif-2-a402708a16 - 副本.jpg
    PS4_0369.jpg PS4_0311.jpg PS4_0296.jpg PS4_0288.jpg PS4_0277.jpg PS4_0356.jpg PS4_0243.jpg PS4_0238.jpg PS4_0263.jpg PS4_0251.jpg PS4_0256.jpg PS4_0260.jpg PS4_0270.jpg PS4_0292.jpg 1Floorplan house42.jpg

    BBS提醒: 请避免提前支付订金、押金等任何费用,请与对方当面沟通,确认资质并看清条款。谨防上当受骗。

    免责声明: 本网站所提供的信息,只供参考之用。本网站不保证信息的准确性、有效性、及时性和完整性。本网站及其雇员一概毋须以任何方式就任何信息传递或传送的失误、不准确或错误,对用户或任何其他人士负任何直接或间接责任。在法律允许的范围内,本网站在此声明,不承担用户或任何人士就使用或未能使用本网站所提供的信息或任何链接所引致的任何直接、间接、附带、从属、特殊、惩罚性或惩戒性的损害赔偿。

    回复

    使用道具 举报

    您需要登录后才可以回帖 登录 | 注册

    本版积分规则

    其他网友还看了 ...

    Copyright @ 2022 AdelaideBBS.com. All rights reserved. User Agreement

    客服号

    公众号