| 微信 : Adelaidehelp 联系邮箱 : [email protected] 开启辅助访问
  • 已租【Harcourts美家】学区房 Myrtle Bank 两室一卫一车 ...

    浏览人气 : 1318
    1/19 Moorhouse Avenue, Myrtle Bank, SA 5064 Property Number : 1607249 价格 : 已租 2 1 1

    Kyle

    联系方式 :
    请联系微信

    看房时间

    看房时间1 : Tuesday 17 February 2026 12:00pm - 12:30pm

    看房时间2 :

    地理位置

    已租【Harcourts美家】学区房 Myrtle Bank 两室一卫一车位全家具整租

    [复制链接]

    本内容为网友发布信息,仅代表原作者观点,不代表本平台立场。

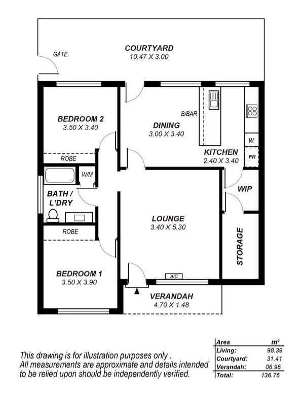
    这间全新翻修的底层Unit坐落于备受追捧的Myrtle Bank优质社区,位置优越,生活便利。周围环境宁静清幽,学区极佳,非常适合家庭租户。房源位于著名的Glenunga国际高中学区内,步行即可到著名的Glen Osmond小学,为孩子们提供优质教育选择。


    主要特点:
    • 全家具拎包入住
    • 黄金位置:近Unley Road, Norwood Parade, Burnside Village和King William Road,购物、餐饮、娱乐设施一应俱全。
    • 便捷交通:街尾即是公共交通,方便直达市中心。
    • 宽敞明亮:采光极佳的开放式客厅与餐厅区域,现代装修风格。
    • 两间宽敞卧室:两间卧室均设有内置衣柜,提供充足储物空间。
    • 现代厨房及设施:几乎全新的厨房,配备优质燃气炉灶,附带宽敞储物间。
    • 全新浴室和洗衣房:浴室全新装修,配备现代化设施,独立洗衣区。
    • 舒适的温控系统:配备冷暖空调,确保四季舒适。
    • 节能热水系统:全新Rinnai热水系统。


    学区:
    • Glenunga国际高中学区
    • 靠近Glen Osmond小学


    出租信息:
    • 押金:4周租金
    • 水费:租客承担水费
    • 停车:配有一车位

      有意请联系Kyle
      【Harcourts美家】学区房 Myrtle Bank 两室一卫一车位全家具整租-1.jpg

      【Harcourts美家】学区房 Myrtle Bank 两室一卫一车位全家具整租-2.png


      【Harcourts美家】学区房 Myrtle Bank 两室一卫一车位全家具整租-3.png


      【Harcourts美家】学区房 Myrtle Bank 两室一卫一车位全家具整租-4.png


      【Harcourts美家】学区房 Myrtle Bank 两室一卫一车位全家具整租-5.png


      【Harcourts美家】学区房 Myrtle Bank 两室一卫一车位全家具整租-6.png


      【Harcourts美家】学区房 Myrtle Bank 两室一卫一车位全家具整租-7.png


      【Harcourts美家】学区房 Myrtle Bank 两室一卫一车位全家具整租-8.png


      【Harcourts美家】学区房 Myrtle Bank 两室一卫一车位全家具整租-9.png


      【Harcourts美家】学区房 Myrtle Bank 两室一卫一车位全家具整租-10.png


      【Harcourts美家】学区房 Myrtle Bank 两室一卫一车位全家具整租-11.png


      【Harcourts美家】学区房 Myrtle Bank 两室一卫一车位全家具整租-12.png


    BBS提醒: 请避免提前支付订金、押金等任何费用,请与对方当面沟通,确认资质并看清条款。谨防上当受骗。

    免责声明: 本网站所提供的信息,只供参考之用。本网站不保证信息的准确性、有效性、及时性和完整性。本网站及其雇员一概毋须以任何方式就任何信息传递或传送的失误、不准确或错误,对用户或任何其他人士负任何直接或间接责任。在法律允许的范围内,本网站在此声明,不承担用户或任何人士就使用或未能使用本网站所提供的信息或任何链接所引致的任何直接、间接、附带、从属、特殊、惩罚性或惩戒性的损害赔偿。

    回复

    使用道具 举报

    您需要登录后才可以回帖 登录 | 注册

    本版积分规则

    其他网友还看了 ...

    Copyright @ 2022 AdelaideBBS.com. All rights reserved. User Agreement

    客服号

    公众号