| 微信 : Adelaidehelp 联系邮箱 : [email protected] 开启辅助访问
  • 【Harcourts美家|出售】Gilberton优质地段现代家庭住宅 ...

    浏览人气 : 950
    3A Ponder Avenue, Gilberton, SA 5081 Property Number : 1613774 价格 : 2026年4月2日下午1:00现场拍卖 5 3 4

    Gloria Ye and Richard Chiu

    联系方式 :
    0430 043 003

    看房时间

    看房时间1 :

    看房时间2 :

    地理位置

    【Harcourts美家|出售】Gilberton优质地段现代家庭住宅|宽敞布局|高品质生活之选

    [复制链接]

    本内容为网友发布信息,仅代表原作者观点,不代表本平台立场。

    2026年4月2日下午1:00现场拍卖

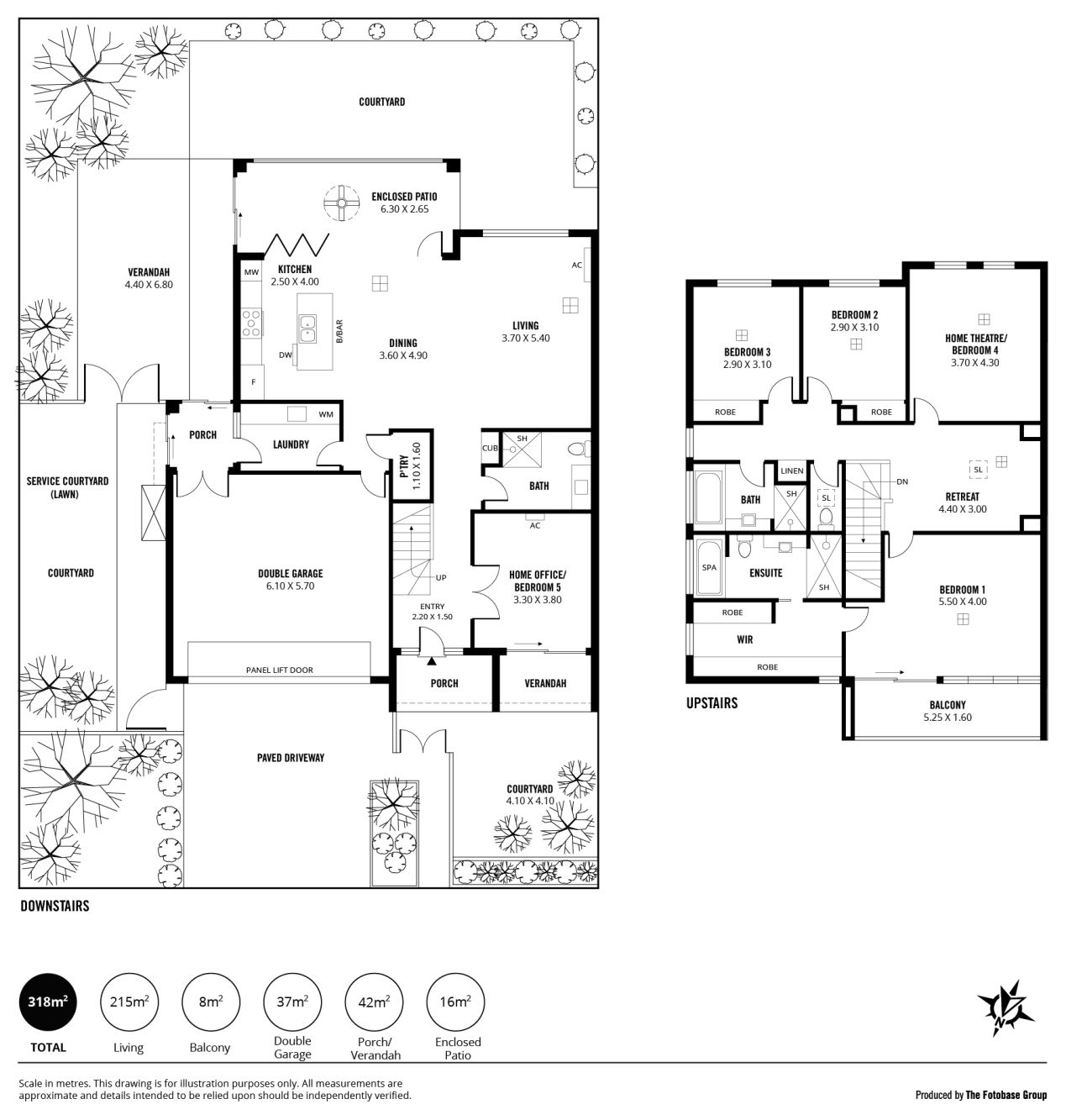
    坐落于备受青睐的 Gilberton 优质社区,这套精心打造的住宅融合现代设计与实用家庭空间,呈现舒适与功能兼具的居住体验。房屋整体布局合理,空间宽敞,非常适合家庭居住及日常生活需求。
    住宅内部设计注重空间与采光,多个生活区域分布合理,既满足家庭互动,也兼顾私密性。开放式客厅与餐厅区域通透自然,为日常生活与朋友聚会提供理想空间。
    厨房配置现代,拥有充足操作空间与储物设计,满足家庭日常烹饪需求,同时与主要生活区域紧密相连,提升整体使用便利性。
    卧室空间宽敞,主卧配备独立卫浴及衣帽空间,其余卧室亦具备良好的居住舒适度,适合家庭成员或访客使用。
    户外空间设计低维护,兼顾实用性与休闲功能,为家庭提供额外活动与放松区域。
    地理位置优越,靠近城市中心,同时邻近优质学校、公园及生活配套设施,在安静社区环境与便利生活之间取得良好平衡。

    • 宽敞家庭住宅布局(约393㎡用地)
    • 4卧3卫(适合家庭居住)
    • 开放式客厅与餐厅空间
    • 多功能生活区域,满足家庭需求
    • 主卧套房,配备独立卫浴与衣帽空间
    • 现代厨房,操作与储物空间充足
    • 室内采光良好,空间通透
    • 低维护庭院,兼具实用与休闲
    • 双车位车库(安全便捷)
    • 位于Gilberton优质社区,靠近学校、公园及CBD

    有意请联系Gloria或Richard
    035912flu8idjocj1jvidv.jpg 未命名的副本__2024-09-26 14_57_49.jpg
    _MG_0237.jpg _MG_0242.jpg _MG_0252.jpg _MG_0327.jpg _MG_0332.jpg _MG_0352.jpg _MG_0362.jpg _MG_0377.jpg _MG_0382.jpg _MG_0387.jpg _MG_0392.jpg _MG_0412.jpg _MG_0417.jpg _MG_0262.jpg _MG_0267.jpg _MG_0257.jpg _MG_0227.jpg _MG_0222.jpg
    Ic_1059907.jpg


    _MG_0287.jpg
    _MG_0292.jpg
    _MG_0307.jpg
    _MG_0312.jpg

    BBS提醒: 请避免提前支付订金、押金等任何费用,请与对方当面沟通,确认资质并看清条款。谨防上当受骗。

    免责声明: 本网站所提供的信息,只供参考之用。本网站不保证信息的准确性、有效性、及时性和完整性。本网站及其雇员一概毋须以任何方式就任何信息传递或传送的失误、不准确或错误,对用户或任何其他人士负任何直接或间接责任。在法律允许的范围内,本网站在此声明,不承担用户或任何人士就使用或未能使用本网站所提供的信息或任何链接所引致的任何直接、间接、附带、从属、特殊、惩罚性或惩戒性的损害赔偿。

    回复

    使用道具 举报

    您需要登录后才可以回帖 登录 | 注册

    本版积分规则

    其他网友还看了 ...

    Copyright @ 2022 AdelaideBBS.com. All rights reserved. User Agreement

    客服号

    公众号